Résidence d'artistes

Projet libre de diplôme

L'histoire au service de l'architecture

QUOI

Réhabilitation complète

Où

Malaucène - Vaucluse

QUAND

Mai 2017

Réhabiliter un bâtiment abandonné depuis les années 1960, pour lui redonner vie.

 

Les anciennes plâtrières du Groseau, font peau neuve et deviennent résidence d'artistes spécialisée dans le travail artistique du plâtre et de ses dérivés.

 

"La nouveauté, c'est la sensibilité de l'artiste." Azorin

 

La transformation de la matière, devient l'objet de la mutation architecturale du site. Rendre hommage à l'histoire du bâtiment tout en répondant aux besoins futurs.

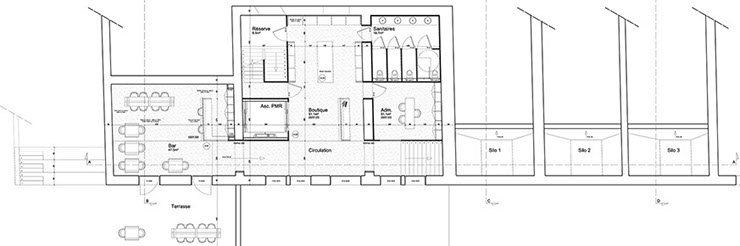
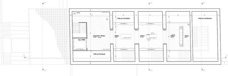
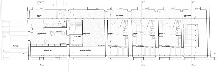
Il s'agissait pour ce projet de respecter au maximum l'architecture existante de cette ancienne usine. Les murs intérieurs et périphériques sont ainsi conservés dans leur totalité. Les nouveaux espaces créés viennent ainsi s'articuler entre les refends sur 3 étages.

 

Une circulation unique a été pensé pour ce projet, afin de découvrir l'ensemble du bâtiment de l'accueil à l'espace boutique/bar, en passant par les ateliers d'artistes, l'espace projection ... Ainsi le visiteur chemine au travers des espaces tout comme il chemine à travers la démarche de l'artiste en résidence à ce moment même.

Le projet des plâtrières de Malaucène est avant tout un projet respectueux de l'histoire du lieu, dans un soucis de pérennité.

Hier usine de fabrication de plâtre, demain résidence d'artistes autour du plâtre.

 

Ce projet est la possibilité d'un échange, d'une découverte entre visiteurs et artistes/designers.

 

Il s'agit d'un projet proposant à la fois une partie ERP (établissement recevant du public, soumit à la réglementation PMR) et une partie résidence, proposant trois logements pour les artistes dans une partie annexe du site.

Tél. 0659805740 - Mail. fannyrampon.architecte@gmail.com

© 2019 by Fanny Rampon, Architecte d'intérieur. Tous droits réservés