Espace nuit

Rénovation d'un espace nuit

Deux chambres et une salle d'eau

QUOI

Rénovation partielle

Gigondas - Vaucluse

QUAND

Novembre 2018

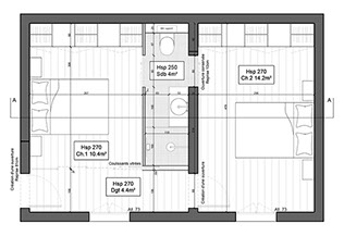
La problématique principale de ce projet est l’enfilade qui permet de desservir les deux espaces, obligeant ainsi une dépendance des pièces les unes avec les autres.

 

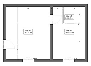
La salle de douche située dans la chambre du fond, non accessible directement par la première chambre est également un problème pour la propriétaire.

 

L’idée du projet était donc de structurer l’espace en créant une salle de douche accessible par les deux chambres, comprenant toutes les commodités nécessaires.

 

L’enfilade est supprimée par la création d’un nouvel accès en façade sud pour la seconde chambre, l’ancien accès étant désormais destiné à la salle d’eau.

 

Par un système de coulissants vitrés à galandage, la première chambre peut être isolée ou non de l'espace couloir en fonction des besoins. Ainsi, ce réaménagement permet de distinguer deux réelles chambres, tout en valorisant au maximum l'apport de lumière naturelle même en second jour.

 

Le petit plus du projet a été d'ajouter un linéaire de rangements dans chacune des chambres afin de maximiser l'espace.

Tél. 0659805740 - Mail. fannyrampon.architecte@gmail.com

© 2019 by Fanny Rampon, Architecte d'intérieur. Tous droits réservés