Rénovation d'un demi rdc

Une chambre et une buanderie

Début des travaux à l'automne 2019

QUOI

Rénovation partielle

Où

Vaison la R - Vaucluse

QUAND

Juin 2019

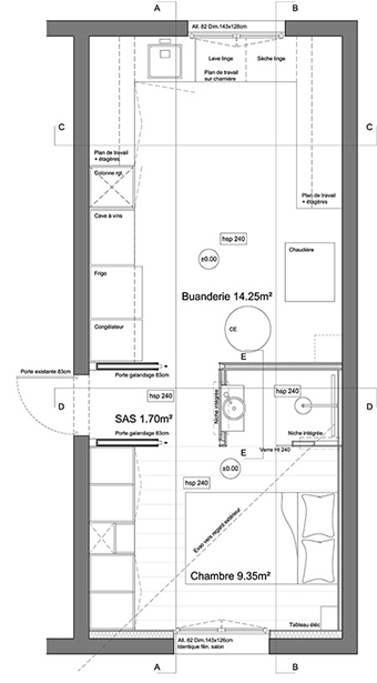
Pour ce projet il s'agissait de rénover un demi rez de chaussée, qui est actuellement un garage partiellement réaménagé, comprenant une buanderie/cellier et un espace nuit.

 

Il s'agissait de créer une vraie buanderie, pouvant accueillir frigo, congélateur, cave à vins. Maximiser l'espace pour obtenir le plus de rangements possibles. Créer un espace lumineux, fonctionnel et épuré.

 

Dans l'autre partie, l'idée était de créer une véritable chambre d'appoint, avec un pan entier de rangements/bibliothèque. De, plus il fallait trouver une solution pour pouvoir installer un coin d'eau : douche et vasque dans la chambre. Ce dernier a été pensé comme un petit volume habillé de carreaux 10x10 bleu nuit sur toute la hauteur. Un meuble vasque sur mesure sera créé et intégré dans une niche afin d'accueillir un grand miroir et ainsi agrandir le volume.

 

La chambre de petite taille sera entièrement peinte en blanc afin d'apporter le maximum de lumière à la pièce. Le sol sera recouvert de parquet. La porte de garage actuelle remplacée par une fenêtre identique aux autres pièces de la maison.

 

RDV à l'automne pour les travaux et les photos avant/après.

Tél. 0659805740 - Mail. fannyrampon.architecte@gmail.com

© 2019 by Fanny Rampon, Architecte d'intérieur. Tous droits réservés